Containere Eco
Containerele ECO sunt soluția noastră cea mai eficientă, calitativă și economică pentru un spațiu rapid. Modelele standard se livrează din stoc în 1-3 zile lucrătoare.
— Containere ECO: Spațiul inteligent, livrat rapid
Ai nevoie urgent de un spațiu funcțional, eficient și economic? Containerele ECO reprezintă soluția ideală! Proiectate cu un focus pe optimizarea costurilor și a timpului de livrare, modelele noastre standard sunt disponibile direct din stoc și pot ajunge la tine în doar 1-3 zile lucrătoare. Descoperă avantajele unei alegeri inteligente, fără compromisuri în ceea ce privește calitatea.
— Specificații Tehnice Detaliate:
Pentru a-ți oferi o imagine completă, iată specificațiile standard ale containerelor ECO:
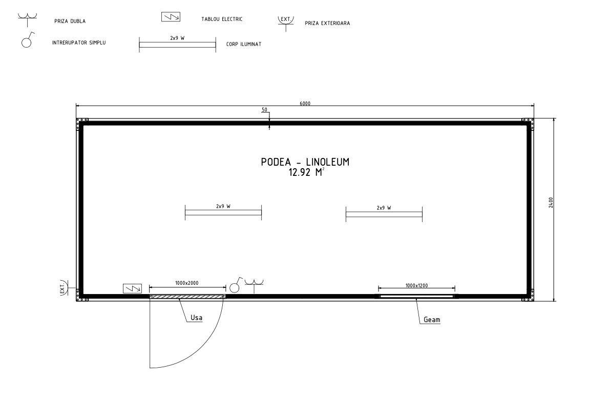
— Dimensiuni Exterioare:
- Lungime: 6000 mm;
- Lățime: 2400 mm;
- Înălțime: 2700 mm
— Structură Robustă:
- Ramă: Construcție solidă, îmbinată prin șuruburi, realizată din oțel zincat cu o grosime de 2.0 mm (stâlpi de 2.5 mm pentru o rezistență sporită). Finisaj cu vopsea gri elegantă.
- Pereți: Panouri sandwich cu o grosime de 50 mm, având culoarea standard RAL 9002 (alb murdar), asigurând o izolare termică și fonică eficientă.
- Acoperiș: Construcție metalică durabilă, completată de un panou de 30 mm și un strat de vată minerală de 100 mm pentru o izolare termică superioară și protecție împotriva intemperiilor.
- Podea: Stratificare atentă pentru durabilitate și confort: construcție metalică solidă, placaj Tego de 18 mm pentru rezistență la trafic intens și linoleum de calitate superioară pentru o întreținere facilă.
— Dotări Standard Incluse:
- Ușă Externa: 1 x ușă metalică robustă, cu dimensiunea de 1000/2000 mm, asigurând acces securizat.
- Ferestre: 1 x fereastra din PVC alb, cu dimensiunea de 1000/1200 mm, oscilo-batante, oferind lumină naturală și ventilație optimă.
- Instalație Electrică Completă: Tablou electric sigur și funcțional.
- Prize: 2 x prize duble pentru conectarea echipamentelor electrice.
- Priza Externă: 1 x priză externă de 220V pentru alimentare facilă.
- Iluminat Interior: 2 x corpuri de iluminat eficiente de 1x9W.
— Opțiuni Personalizate (Contra Cost):
Pentru a adapta containerul perfect nevoilor tale specifice, oferim o gamă variată de opțiuni suplimentare, incluzând:
- Sistem de climatizare (aer condiționat) pentru confort termic optim.
- Grup sanitar complet echipat (baie).
- Izolație suplimentară a podelei pentru un confort sporit.
- Și multe alte dotări la cerere.
Alege inteligent, alege eficiența și rapiditatea containerelor ECO de la Xprod! Contactează-ne astăzi pentru a discuta despre proiectul tău.
Ce spun clienții despre Containerele Eco
Am avut parte de o colaborare absolut impecabilă! Echipa a fost extrem
de promptă, mereu disponibilă și orientată spre soluții. S-au respectat
toate deadline-urile fără excepție, iar comunicarea a fost excelentă pe
tot parcursul proiectului. Calitatea containerelor livrate este
remarcabilă, totul a fost executat cu profesionalism și atenție la
detalii. Recomand cu toată încrederea!
Elias Nord SRL
In luna iulie 2024 am cumparat de la Nedeias un container de locuit ( izolatie 100mm) cu baie , inclusiv boiler si aparat de aer conditionat .
L-am folosit aproape un an si totul este ok , iarna am mai ajutat putin incalzirea cu un calorifer cu ulei.
Livrarea fost prompta si colaborarea cu firma pentru stabilirea proiectului de container , excelenta.
Dumitru M., Bistrita
Totul a decurs foarte bine: containerul a fost livrat prompt, într-o stare foarte bună, iar comunicarea cu echipa voastră a fost excelentă – rapidă, clară și profesionistă. De asemenea, am apreciat flexibilitatea de care ați dat dovadă și suportul oferit pe parcursul colaborării.
Vă felicitam pentru seriozitatea și calitatea serviciilor. Cu siguranță vom reveni la voi pentru viitoare proiecte și vă vom recomanda cu încredere și altor colaboratori.
AxA Con Construct S.R.L.
Containerele comandate au ajuns la sediul nostru si va multumim !
Timpul de livrare a fost unul foarte bun,
Detaliile echipamentelor au fost comunicate iar executia lor conform specificatii transmise,
Containerele sunt de o calitate exceptionala si se pot personaliza in functie de aplicatie / proiect,
Va multumim pentru colaborare !
Hidronic SRL
Spațiu temporar sau permanent? Solicitați oferta XPROD!
Soluții flexibile pentru spațiul tău: cere ofertă de închiriere sau vânzare!






